シティコート代々木
- お気に入り
- mail_outline 物件へのお問い合わせ
最上階4階部分・3方角部屋
中古マンション
- 価格
- 22,990 万円(税込) pollローンシミュレーション
- 所在地
- 東京都渋谷区代々木5丁目
- 交通
-
小田急電鉄小田原線「代々木八幡」 駅徒歩8分
東京地下鉄千代田線「代々木公園」 駅徒歩9分
小田急電鉄小田原線「参宮橋」 駅徒歩10分
最上階4階部分・3方角部屋
- 営業時間
- 10:00~18:00
- 定休日
- 毎週火・水曜定休
外観
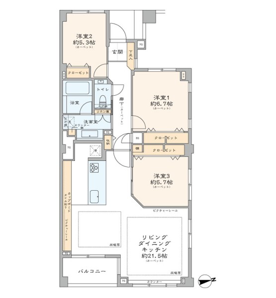
間取
渋谷区の中古マンションシティコート代々木をご覧いただきありがとうございます。 QUALITY-CONCEPT(クオリティコンセプト)四谷店不動産売買仲介情報サイトでは、 シティコート代々木の中古マンション以外にも、 渋谷区のマンション、新築戸建、中古戸建、土地など不動産情報を多数ご紹介しております。 千代田区・中央区・港区・新宿区・渋谷区・文京区で不動産の購入・売却・資産運用・投資をお考えの方はQUALITY-CONCEPT(クオリティコンセプト)四谷店にお任せください!