ベラビスタ信濃町
- お気に入り
- mail_outline 物件へのお問い合わせ
2025年1月にリフォーム済みの物件です。建築家によるリノベーションで生活スタイルに応じて変化するワンルーム設計となります。南向きにつき陽当り良好です。
中古マンション
- 価格
- 4,880 万円(税込) pollローンシミュレーション
- 所在地
- 東京都新宿区南元町
- 交通
-
総武・中央緩行線「信濃町」 駅徒歩7分
東京都大江戸線「国立競技場」 駅徒歩12分
東京地下鉄丸ノ内線「四ツ谷」 駅徒歩13分
2025年1月にリフォーム済みの物件です。建築家によるリノベーションで生活スタイルに応じて変化するワンルーム設計となります。南向きにつき陽当り良好です。
- 担当
-
小島 健斗
- 営業時間
- 10:00~18:00
- 定休日
- 毎週火・水曜定休
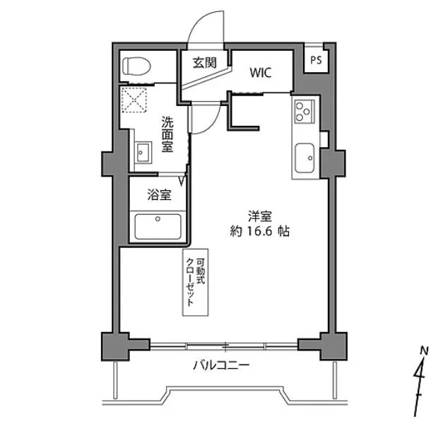
居室
間取
新宿区の中古マンションベラビスタ信濃町をご覧いただきありがとうございます。 QUALITY-CONCEPT(クオリティコンセプト)四谷店不動産売買仲介情報サイトでは、 ベラビスタ信濃町の中古マンション以外にも、 新宿区のマンション、新築戸建、中古戸建、土地など不動産情報を多数ご紹介しております。 千代田区・中央区・港区・新宿区・渋谷区・文京区で不動産の購入・売却・資産運用・投資をお考えの方はQUALITY-CONCEPT(クオリティコンセプト)四谷店にお任せください!