ピアース四谷
- お気に入り
- mail_outline 物件へのお問い合わせ
「曙橋」駅徒歩4分・3方角部屋
中古マンション
- 価格
- 11,990 万円(税込) pollローンシミュレーション
- 所在地
- 東京都新宿区富久町
- 交通
-
東京都新宿線「曙橋」 駅徒歩4分
東京地下鉄丸ノ内線「四谷三丁目」 駅徒歩6分
「曙橋」駅徒歩4分・3方角部屋
- 営業時間
- 10:00~18:00
- 定休日
- 毎週火・水曜定休
外観
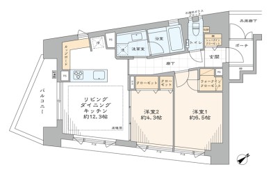
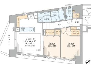
間取
新宿区の中古マンションピアース四谷をご覧いただきありがとうございます。 QUALITY-CONCEPT(クオリティコンセプト)四谷店不動産売買仲介情報サイトでは、 ピアース四谷の中古マンション以外にも、 新宿区のマンション、新築戸建、中古戸建、土地など不動産情報を多数ご紹介しております。 千代田区・中央区・港区・新宿区・渋谷区・文京区で不動産の購入・売却・資産運用・投資をお考えの方はQUALITY-CONCEPT(クオリティコンセプト)四谷店にお任せください!