東京タイムズタワー
- お気に入り
- mail_outline 物件へのお問い合わせ
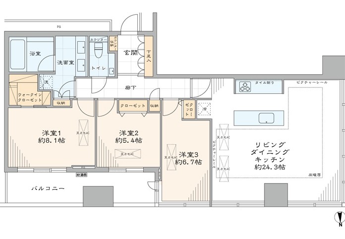
専有面積98㎡ゆとりの3LDK
中古マンション
- 価格
- 33,990 万円(税込) pollローンシミュレーション
- 所在地
- 東京都千代田区外神田4丁目
- 交通
-
山手線「秋葉原」 駅徒歩5分
京浜東北・根岸線「秋葉原」 駅徒歩5分
東京地下鉄銀座線「末広町」 駅徒歩3分
専有面積98㎡ゆとりの3LDK
- 担当
-
森田正美
- 営業時間
- 10:00~18:00
- 定休日
- 毎週火・水曜定休
外観
間取
千代田区の中古マンション東京タイムズタワーをご覧いただきありがとうございます。 QUALITY-CONCEPT(クオリティコンセプト)四谷店不動産売買仲介情報サイトでは、 東京タイムズタワーの中古マンション以外にも、 千代田区のマンション、新築戸建、中古戸建、土地など不動産情報を多数ご紹介しております。 千代田区・中央区・港区・新宿区・渋谷区・文京区で不動産の購入・売却・資産運用・投資をお考えの方はQUALITY-CONCEPT(クオリティコンセプト)四谷店にお任せください!